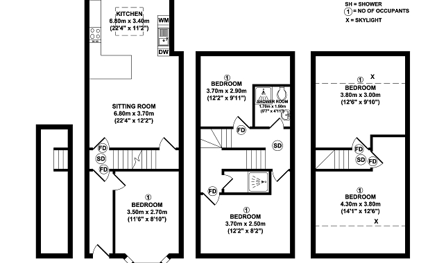
Fantastic 5 bedroom student property with 3 modern bathrooms
ALL BILLS INCLUSIVE
• Light, spacious kitchen with 2 freezers, large fridge, microwave, washing machine, tumble dryer and dishwasher.
• Open plan lounge with large, flat screen TV provided (we also sort the TV licence out for you)
• 3 showers (1 rainfall shower) and 2 toilets - reducing morning queues!
• All bedrooms have double beds and modern Ikea furniture in all rooms (desk, chair, mirror, wardrobe, drawers)
• Nicely decorated and laminate flooring throughout
• Back yard with a picnic table – great in the summer
• Permit parking available
. As well as being fully furnished, we even provide a Henry Hoover with your property so you can keep the home neat and tidy




